管道设计安装与改造当然到太金机电
厦门太金机电有限公司创立即秉持“客户满意和信赖是我们永恒的追求”之理念,竭诚为广大需求用户提供完善的管道设计安装与改造服务,自2011-09-20伊始,历经多年在压缩设备行业的钻研,以及本公司对品质的坚持,产品服务覆盖国际国内市场,且深得用户好评。
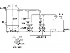
厦门太金机电有限公司(简称“太金机电”),位于福建省厦门市集美区,专业销售进口和国内螺杆空压机(品牌:阿特拉斯?科普柯、尚爱中高压空压机、美国昆西、上海信然等)、空压机系统、制氮机;机电系统设计安装、自动化控制、工艺管道、通风排气工程的综合性机电技术公司。主要营业:螺杆空压机、变频空压机、无油螺杆空压机、移动式空压机、干燥机(冷冻式干燥机/吸附式干燥机);空压机系统、制氮机、储气罐销售及技术服务;空压机/制氮机系统连接件配件、耗材、空压机油;空压机维修、保养服务、3D打印机及打印服务。服务范围:空压机销售及维修保养、干燥机销售及维修保养、冷干机销售及维修保养、空压机系统(销售、设计、安装和维修保养)、制氮机销售及维修保养、精密过滤器、空压机/制氮机系统连接件配件、耗材、空压机油、储气罐、3D打印机销售及打印服务、3D打印机耗材等。空压机系统(销售、设计、安装和维修保养)。
厦门太金机电有限公司成立多年以来,培养了大量优质的产品和专业的技术团队,为需求用户提供了优质的产品、良好的技术支持、健全的售后服务,公司提供的管道设计安装与改造服务,在福建省备受瞩目。太金机电秉乘“质量为先,信誉为重,管理为本,服务为诚”的企业精神,以专业的技术,诚信的服务赢得了广大用户的赞誉。
太金机电凭借先进的设计,优质的产品,真诚的服务在福建、厦门、漳州、泉州赢得广大用户的赞誉。服务采用以项目计费的方式收取费用,支持现金支付;银行转账的付款方式。本公司提供的管道设计安装与改造服务专业,如有需要维修保养服务,请及时联系我们。
面对新的机遇和挑战,厦门太金机电有限公司本着客户满意和信赖是我们永恒的追求的宗旨,努力工作,不断开拓创新。公司为每一个需求用户所提供的管道设计安装与改造都认真负责,公司还拥有专业的技术人员上门安装维修、随叫随到、维修快捷、价格合理、欢迎新老用户来电联系。联系人蔡经理。
供应详情请来电咨询厦门太金机电有限公司,我们有厦门空压机厂商,漳州管道设计安装,泉州空压机热线,空压机订购等信息等您详询



