优质管道设计安装与改造服务提供
厦门太金机电有限公司位于厦门市集美区东安前占里19号,于2011-09-20成立。自创立之始,我们就全心全力做管道设计安装与改造型机构。依靠我们的努力,短短时间内我们就在福建、厦门、漳州、泉州享有很高的口碑 ,在同类服务中脱颖而出。欢迎新老用户来电联系。
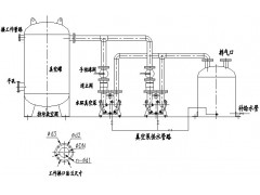
厦门太金机电有限公司(简称“太金机电”),位于福建省厦门市集美区,专业销售进口和国内螺杆空压机(品牌:阿特拉斯?科普柯、尚爱中高压空压机、美国昆西、上海信然等)、空压机系统、制氮机;机电系统设计安装、自动化控制、工艺管道、通风排气工程的综合性机电技术公司。主要营业:螺杆空压机、变频空压机、无油螺杆空压机、移动式空压机、干燥机(冷冻式干燥机/吸附式干燥机);空压机系统、制氮机、储气罐销售及技术服务;空压机/制氮机系统连接件配件、耗材、空压机油;空压机维修、保养服务、3D打印机及打印服务。服务范围:空压机销售及维修保养、干燥机销售及维修保养、冷干机销售及维修保养、空压机系统(销售、设计、安装和维修保养)、制氮机销售及维修保养、精密过滤器、空压机/制氮机系统连接件配件、耗材、空压机油、储气罐、3D打印机销售及打印服务、3D打印机耗材等。空压机系统(销售、设计、安装和维修保养)。
太金机电拥有完善的客户服务体系、强大的技术支持团队、深厚的行业成功实施经验,为广大需求用户提供优质可靠的管道设计安装与改造专业服务,在双方协商服务期间内,努力满足客户的要求。公司不断改进旧技术,学习、引进新技术、新科技产品,努力培养高尖技术人才,为需求用户提供全面的服务保障。
为了保证服务质量,公司提供的管道设计安装与改造将会有后续的增值服务,在您选择空压机维修后,我们还提供买卖双方协商的服务方式,以全心全意为顾客服务,忠实履行自己的职业职责的服务标准,给予需求用户高品质的服务感受,用贴心全面的服务来回报回馈顾客。
多年来,厦门太金机电有限公司以可靠的质量,合理的价格,完善的售后服务在福建、厦门、漳州、泉州深受需求用户的支持与关爱。太金机电有着严格的管理制度和先进的国外技术作后盾,坚持“以科技为先导,以质量求生存”的经营理念,以卓越的产品、合理的价格、优质的服务、全心全意为需求用户提供管道设计安装与改造服务。欢迎新老顾客前来垂询惠顾,公司地址:厦门市集美区东安前占里19号。
来电咨询厦门太金机电有限公司产品/服务,给您的不仅仅是厦门空压机热线,泉州空压机供应,,厦门空压机哪家好的信息



